Beskrivelse
Indflytningsklart enderækkehus med god beliggenhed og udsigt over grønne arealer.
Tusindfryd er et boligområde i Gødvad i det nordøstlige Silkeborg. Her er roligt og ingen gennemgående trafik, og boligområdet ligger naturskønt med udsigt over marker og grantræer. Trods den rolige beliggenhed er der ikke langt til dagligdagens fornødenheder. Fra Tusindfryd er der under 2 km til bl.a. Gødvadskolen, sportshallen og Rema 1000, som alt sammen kan nås via stisystem. Til Silkeborg Centrum er der ca. 6,5 km, og der er gode busforbindelser ind til byen.
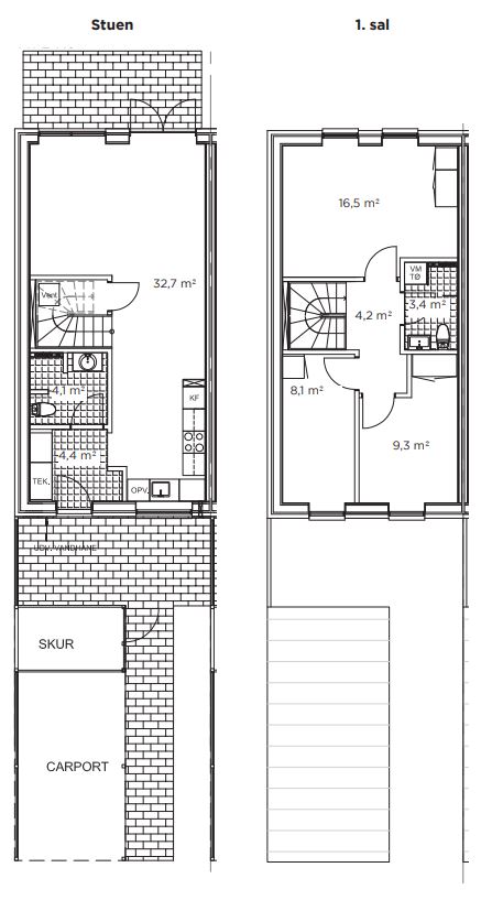
Boligen er i to plan med værelser og ekstra badeværelse på 1. sal. Vaskemaskine og tørretumbler er installeret i badeværelset på 1. sal. Boligerne er lyst og tidløst indrettet med hvide vægge og lyse Troldtekt-lignende lofter. På badeværelserne og i bryggerset er der grålige klinker på gulvet. I de øvrige rum er der lyse laminatgulve med egetræslook. Der er faste hvide Svane-elementer i køkken, bad, bryggers og på værelserne, så boligen er lige til at flytte ind i. Gulvvarme i hele stueetagen sørger for stabil og behagelig varme. På 1. salens værelser giver radiatorer mulighed for en hurtig regulering af varmen.
På 1. salens badeværelse er der gulvvarme. Ventilationsanlæg sikrer et godt indeklima. Mindre depotrum under trappen til 1. sal. Til hvert hus er der en god carport med sensorstyrede spots i loftet. Desuden eget skur til praktisk opbevaring af fx cykler. Foran huset er der mulighed for at indrette en hyggelig gårdhave. Udvendigt er der ved indgangsdøren desuden vandhane og ekstra strømstik. Private terrasser på husets haveside er adskilt af hække. I hele området bliver der grøn Sedumbeplantning på tagene, som er både smuk og praktisk. De kønne stenurter kan optage op til 50 % af al regnvand, hvilket aflaster øvrig regnvandsafledning.
GØDVAD – ÅRETS LOKALOMRÅDE
Gødvad er en gammel landsby, som de seneste år har fået nyt liv som en integreret del af Silkeborg. Gødvad er i rivende udvikling og tiltrækker mange nye tilflyttere – og af god grund. I 2018 blev Gødvad kåret til årets lokalområde, bl.a. pga. sit aktive foreningsliv. I Gødvad er der daginstitutioner, to gode skoler og flere fritidsaktiviteter for børnene. Området er forbundet af trygge, oplyste stisystemer, og der er skøn natur med skov og kuperet terræn. Gødvad ligger desuden med nem adgang til Herningmotorvejen, som du når på ca. fem minutter. Derfra er du i Herning eller Aarhus på ca. en halv time.










